TINY HOME 3

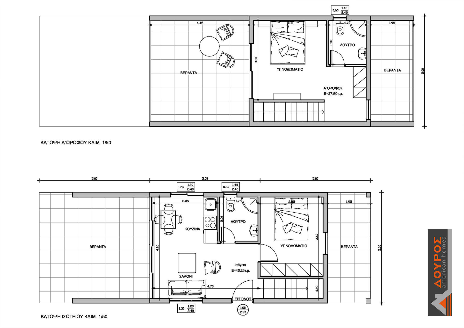
ΚΑΤΟΙΚΙΑ ΜΕ ΣΟΦΙΤΑ ΣΥΝΟΛΙΚΟΥ ΕΜΒΑΔΟΥ 67m²

40m² ισόγειο + 27m² σοφίτα + 67m² Η/Χ

2 υπνοδωμάτια

Κουζίνα ενιαία

Καθιστικό

2 λουτρά

Σκάλα

2 υπνοδωμάτια

Κουζίνα ενιαία

Καθιστικό

2 λουτρά

Σκάλα

Α΄ ΣΤΑΔΙΟ ΚΑΤΑΣΚΕΥΗΣ

ΔΥΝΑΤΟΤΗΤΑ ΚΑΤΑΣΚΕΥΗΣ ΣΕ 40 ΗΜΕΡΕΣ

Η κατοικία TINY 3 περιλαμβάνει τα εξής:

  1. Εξωτερική τοιχοποιία με θερμοπρόσοψη
  2. Εσωτερική τοιχοποιία από γυψοσανίδα
  3. Μονώσεις
  4. Στέγη – Ταράτσα
  5. Ταβάνια
  6. Μεσοπάτωμα (εάν υπάρχει όροφος)
  7. Ηλεκτρολογική εγκατάσταση – Υδραυλική εγκατάσταση
  8. Κουφώματα λευκά PVC – Θωρακισμένη πόρτα
  9. Χαγιάτι – Πέργκολα εξωτερική

* Μεταφορά & τοποθέτηση με επιπλέον κόστος, βάσει περιοχής
** Άδεια οικοδομής με επιπλέον κόστος
*** Βάση με επιπλέον κόστος

Δημιουργούμε τα σχεδία με κάθε λεπτομέρεια, προετοιμάζουμε το πακέτο αδειών συμπεριλαμβανομένων όλων των μελετών και γίνεται έγκριση της αδειοδότησης της κατοικίας. Στην συνέχεια για να μπορούμε να έχουμε τα υλικά έγκαιρα στο χρόνο που επιθυμούμε και να γίνει κατοχύρωση τιμών κάνουμε άμεση παραγγελία σε ξυλεία και κουφώματα. Τέλος κατασκευάζουμε όλη την τοιχοποιία στο εργοστάσιο μας και γίνεται άμεση τοποθέτηση της με την τελική έγκριση της άδειας.

Β΄ ΣΤΑΔΙΟ ΚΑΤΑΣΚΕΥΗΣ

Προαιρετικό

  • Έπιπλα κουζίνας Ιταλικό εργοστάσιο Lube – Creo ή Ελληνικής κατασκευής
    (Συμπεριλαμβάνεται η προμήθεια & η τοποθέτηση)
  • Ντουλάπες Υπνοδωματίων Ιταλικά εργοστάσια ή Ελληνικής κατασκευής
    (Συμπεριλαμβάνεται η προμήθεια & η τοποθέτηση)
  • Εσωτερικές πόρτες Laminate σε επιλογή διαφόρων χρωμάτων
    (Συμπεριλαμβάνεται η προμήθεια & η τοποθέτηση)
  • Εσωτερική σκάλα ξύλινη ή μεταλλική
    (Συμπεριλαμβάνεται η προμήθεια & η τοποθέτηση)

Η επιλογή των σχεδίων & υλικών για τα έπιπλα, τις εσωτερικές πόρτες και την εσωτερική σκάλα πραγματοποιείται στον εκθεσιακό μας χώρο και όλα τα έπιπλα είναι επώνυμα με γραπτή εγγύηση καλής λειτουργίας.

Σε αυτό το στάδιο κατασκευής, το οποίο είναι προαιρετικό, ο πελάτης μπορεί να επισκεφτεί τον χώρο μας, όπου υπάρχει εκθεσιακός χώρος με μεγάλη ποικιλία υλικών. Κατά την επίσκεψη του μπορεί να επιλέξει όλα τα υλικά και τα χρώματα για τις ξυλουργικές εργασίες και κατόπιν να συμφωνηθεί το χρονοδιάγραμμα εργασιών με άμεση παραγγελία τους ώστε να κατοχυρώσουμε τις τιμές και να διασφαλίσουμε την σωστή παράδοση του έργου.

Για όλες τις κατοικίες μας δίνουμε 10 χρόνια εγγύηση καλής λειτουργίας και όλα τα υλικά που χρησιμοποιούμε είναι πιστοποιημένα.

ΔΕΝ ΑΝΑΛΑΜΒΑΝΟΥΜΕ

ΕΞΥΠΗΡΕΤΟΥΜΕ ΣΕ ΟΛΗ ΤΗΝ ΕΛΛΑΔΑ ΚΑΙ ΤΑ ΝΗΣΙΑ

ΕΚΔΗΛΩΣΗ ΕΝΔΙΑΦΕΡΟΝΤΟΣ

Mπορείτε να συμπληρώσετε τα στοιχεία σας και να επιλέξετε την κατασκευή που επιθυμείτε στην παρακάτω φόρμα και θα έρθουμε άμεσα σε επικοινωνία μαζί σας.

Κύλιση στην κορυφή